Auto-entrepreneur

Dessinateur Projeteur Spécialisé en Menuiserie Aluminium & Acier

Plans AutoCAD et mises en production LOGIKAL pour vos projets de menuiserie extérieure.

Demander un devis →

Services

Des prestations adaptées à vos besoins

Plans AutoCAD

Création et modification de plans techniques détaillés pour vos projets de menuiserie aluminium et acier.

Mise en production LOGIKAL

Mise à jour et création de fichiers LOGIKAL après prise de côtes ou modifications techniques.

Tous types de châssis

Mur rideau, fenêtres, portes, coulissants — expertise complète sur toutes les typologies.

Gammes maîtrisées

Expertise sur les principales gammes du marché

REYNAERS
FORSTER
JANSEN

Réalisations

Exemples de travaux réalisés

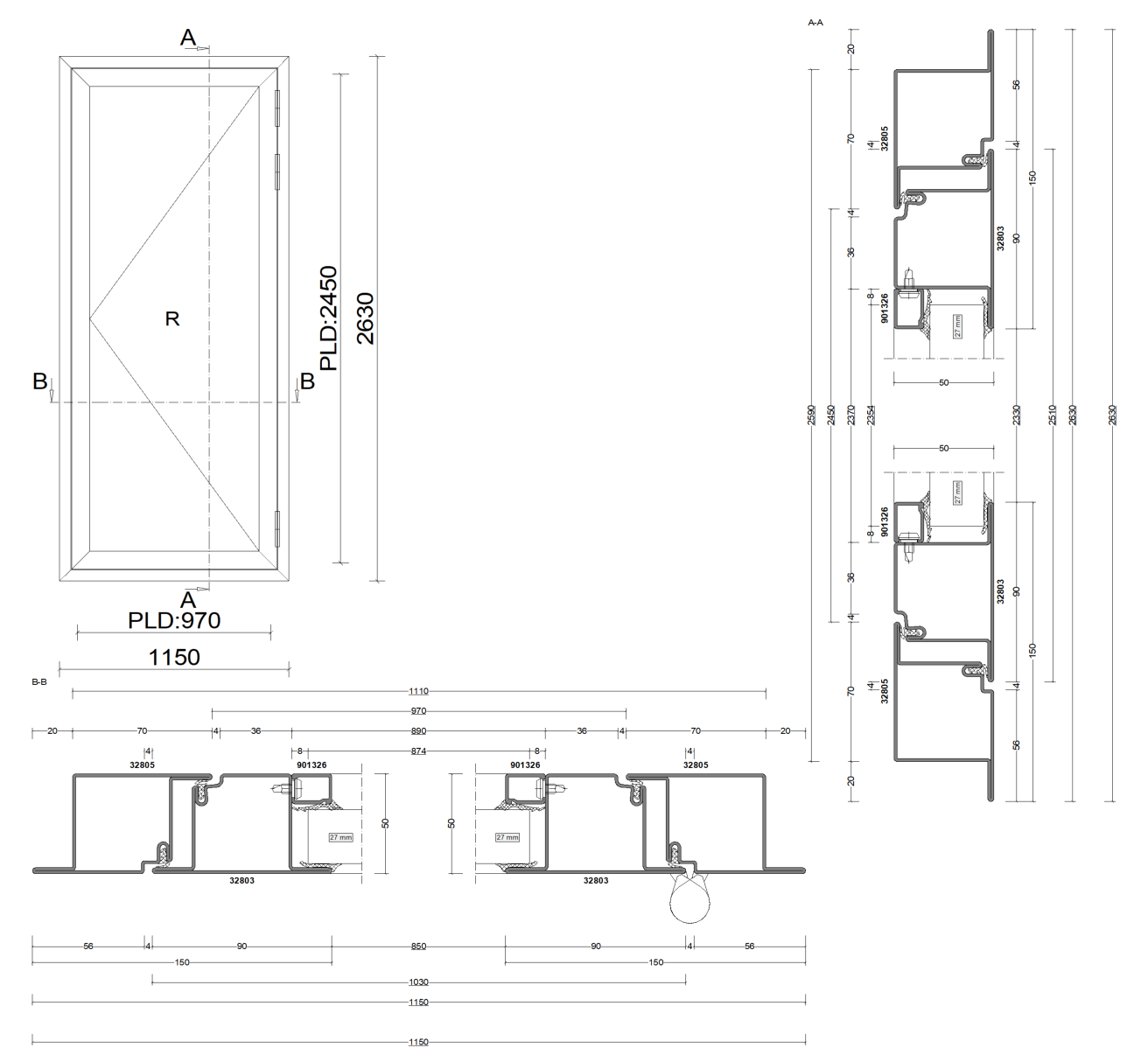
Plan AutoCAD détaillé

Plan d'exécution — Reynaers TS68/CD68

Mise en production LOGIKAL

Mise en plan LOGIKAL

Réalisation finale

Résultat final sur chantier

Mur rideau CLAAS LE HUB

Mur rideau avec châssis oscillo-battant

Grande baie coulissante vestiaire

Grande baie en angle

Porte acier chapiteau

Porte acier grande hauteur — Chapiteau

Entrée vitrée bâtiment

Entrée vitrée avec bardage bois

Façade mur rideau

Mur rideau avec porte — Terrasse extérieure

Façade avec BSO

Facade avec BSO

Verrière passerelle

Verrière passerelle vitrée

Façade avec brise-soleil

Façade aluminium avec brise-soleil orientables

Mur rideau salle

Mur rideau — Salle multifonction

Escalier métallique intérieur

Escalier métallique extérieur

Façade aluminium BSO

Façade aluminium avec BSO et porte

Façade vitrée pergola

Grande façade vitrée

Façade vitrée BSO

Façade vitrée avec BSO

Escalier de secours

Escalier métallique extérieur

Contact

Réponse garantie sous 48h

07 81 98 03 75 · an.guittet@outlook.fr